• PLANT-STRUCTURAL DESIGN
    • Modular Portable Pug Mill
    • Reaction Tanks Access
    • Picking Station
    • Agitator Tower
    • Primary Crusher Module
    • Solomon Primary School
    • Pump PU41 Access
    • Pump PU20/58 Access
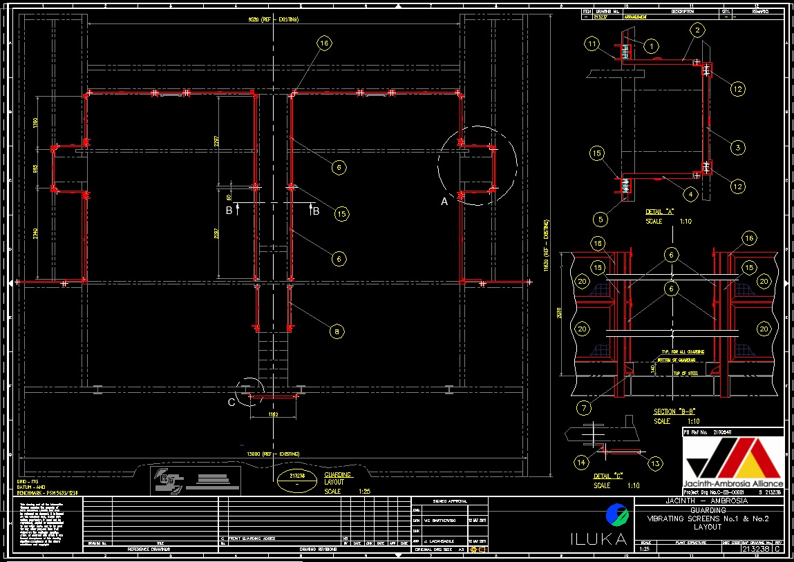
    • Guarding for Vibrating Screens
    • Valves Access Platforms
    • Valves Access Stairs
  • MATERIALS HANDLING
    • Silver Charging Conveyor
    • Silver Vacuum Unit
    • Destacking Trolleys
    • Stillage Conveing System
    • Slag Conveyor
    • Thevenard Hopper Screen
  • PIPING-DUCTING
    • Electrolite Tank Flues
    • Gas Extraction
    • Charge Port Venting
    • Colling Tower Piping
  • SPECIALISED EQUIPMENT
    • Gas Train Isolation
    • Horizontal Damper for Sinter Machine
  • INFRASTRUCTURE
    • Warf Unloading Facility


Bartco Design P/L

  • Home
  • Services
  • Contact Us

Plant Design



Static Guarding for Vibrating Screen No.1&2 - (Iluka Resources 2011)

The aim of the project was to design guarding for vibrating screens at Iluka Resouces site.
The project involved designing more than 40 pieces of guarding, new supports, new gates, etc.






Model - Autodesk Inventor






General Arrangement







Layout / Section Views






Details

Bartco Design Pty Ltd

Ph. 08 8289 7752
Fax.08 8289 7852